Hudson House
Hudson House

Hudson House
Nick & Rachel Cope
Timeline
Summer 2016
Location
Hudson, NY
Role
Site surveying, elevation & floor plan drawings, 3D rendering
Team
Scott Harano, co-site surveyor
Connie Chiang, select digital elevation drawings
office of tangible space, interior re-design
Nick & Rachel Cope
Timeline
Summer 2016
Location
Hudson, NY
Role
Site surveying, elevation & floor plan drawings, 3D rendering
Team
Scott Harano, co-site surveyor
Connie Chiang, select digital elevation drawings
office of tangible space, interior re-design
Project Overview
Picture an old home in Hudson, NY eclectic & mismatched 70’s shag carpet and wallpaper. The house had good bones but was ready for an update. My colleague Scott & I were tasked with completing a full site survey of the 2-story home. A floor plan, elevations, and a 3D rendering of the home were part of the final deliverables.
Press
Curbed︎︎︎ Sight Unseen︎︎︎ tangible space︎︎︎
Finished home photos by Hanna Grankvist + Zio & Sons iPhone photos by Emily Kim & Scott Harano
Picture an old home in Hudson, NY eclectic & mismatched 70’s shag carpet and wallpaper. The house had good bones but was ready for an update. My colleague Scott & I were tasked with completing a full site survey of the 2-story home. A floor plan, elevations, and a 3D rendering of the home were part of the final deliverables.
Press
Curbed︎︎︎ Sight Unseen︎︎︎ tangible space︎︎︎
Finished home photos by Hanna Grankvist + Zio & Sons iPhone photos by Emily Kim & Scott Harano
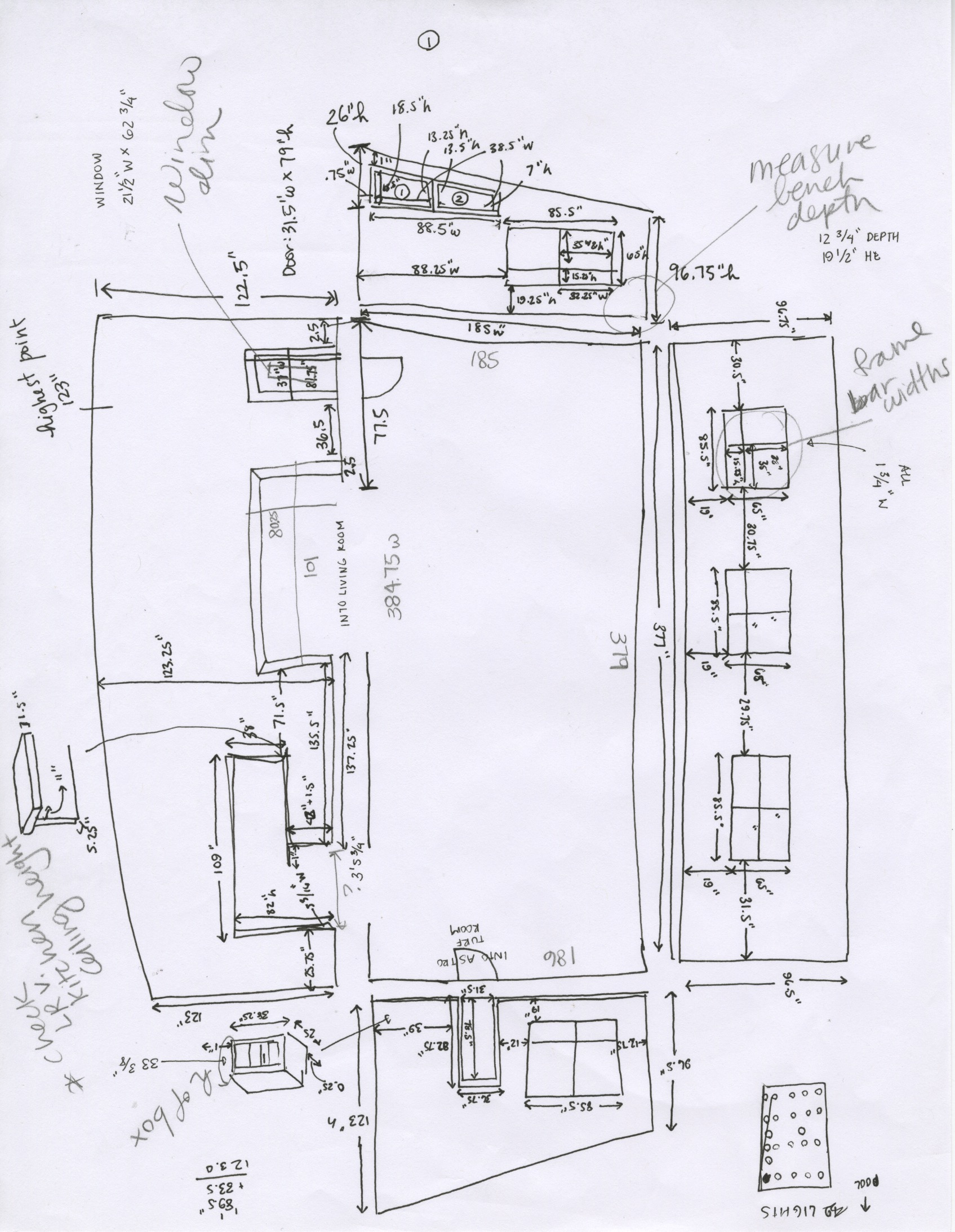
Site Survey
No floor plans or elevations made available as reference materials, so Scott & I spent a full day photographing, measuring, and drawing elevations and floor plans of the house.


West exterior (before)


Back exterior dimensions (onsite elevation drawings)
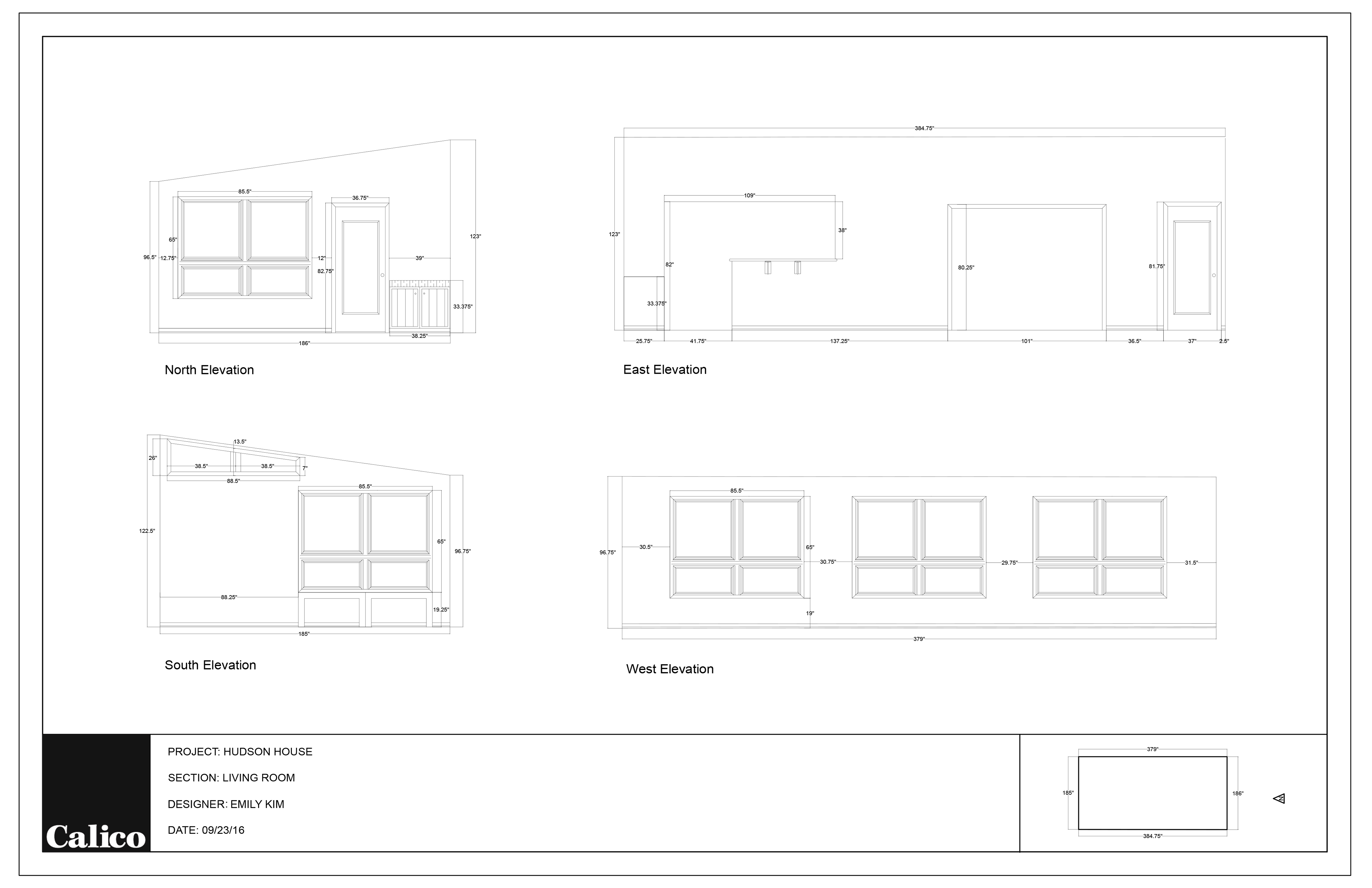
Elevations & Floor plans (As Built)

Living room elevations

North exterior elevation
3D Model







© 2022 Emily Kim